River Birch Cottages is a quaint development located in the heart of StillWaters in Dadeville, AL. Inside the gates of StillWaters on beautiful Lake Martin, you will find a mixture of waterfront homes, waterfront condos, and villas. In addition, you then have the River Birch Cottages homes which are golf-front and homes built on interior lots.
As a StillWaters resident, you will have access to the pool, tennis courts, playground, and more. See the full list of community amenities on the Resources, Community & Amenities page!
Introductory Video
Community Location
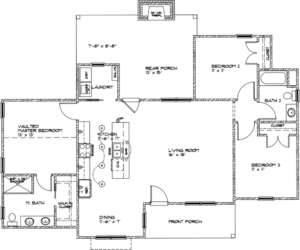
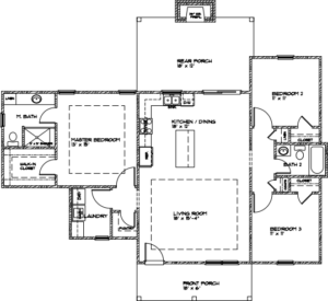
Floor Plans
River Birch Cottages floor plans are three bedrooms and two bathrooms, ranging from 1,336 to 1,480 square feet.
All homes include great standard features and design options, including granite countertops.
Floorplans, elevations, specifications, dimensions, pricing, and designs are subject to change without prior notice. It is the intent of this website to provide the most current information, however, we cannot control the exact timing of changes and when information has been relayed.
